Lisboa, Vila Franca de Xira, Vila Franca de Xira, Bom Retiro
Living well in Vila Franca de Xira starts here!
If you're looking for a new home to give your life a fresh start, this apartment has all the necessary conditions to meet your expectations.
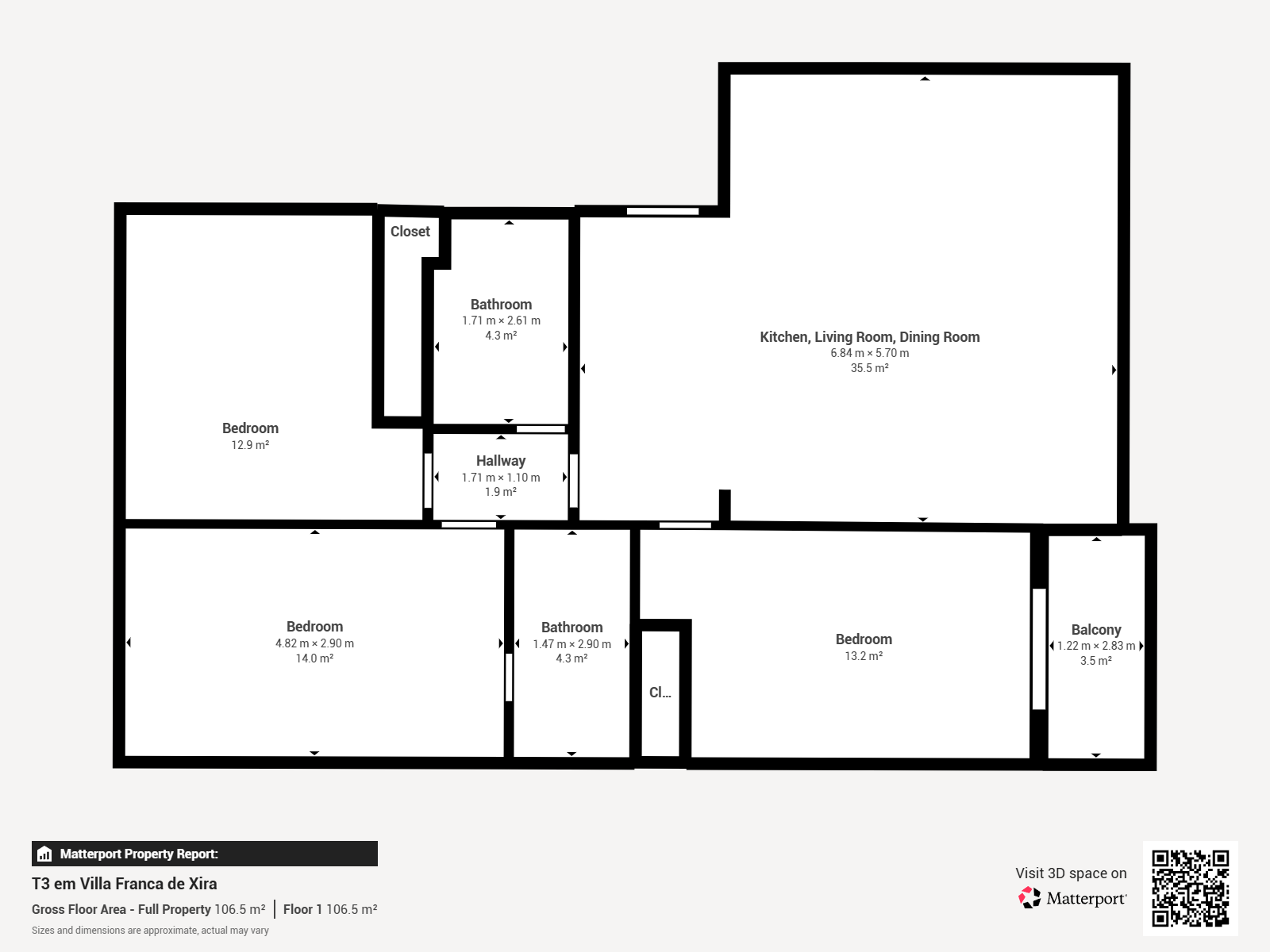
The perfect combination of comfort, modernity and tranquillity. With three bright bedrooms, one of which is en-suite, two renovated bathrooms and air conditioning, every detail has been thought of to provide well-being on a daily basis.
The view of the mountains invites you to serenity, while the privileged location, just 5 minutes from the A1, with schools nearby, guarantees mobility and convenience without giving up the calm of a quiet residential area.
More than a property, this is a space for creating memories, resting and living with quality.
Discover where tranquillity meets modernity - your new home awaits you!